• Home
  • About Us
  • Portfolio
  • Contact

Sophisticated residential architecture that redefines modern living in Bangalore's urban landscape

Location Mico Layout
Status Completed (2025)
Service Architectural Design
Sectors Apartment Development
Area 8,200 sqft²
Client Akarsh & Rao Builders

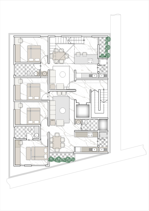
Pristine Hive represents a refined approach to contemporary residential design, transforming 1,200 square meters in Girinagar, Bangalore into an elegant living environment that balances privacy with community engagement. This architectural project demonstrates how thoughtful design can create homes that respond to the evolving needs of modern urban families while maintaining a strong connection to the local context. The development features carefully planned residential units that maximize natural light and ventilation, with each space designed to offer flexibility for contemporary lifestyles. Through strategic material selection and innovative spatial planning, Pristine Hive creates an atmosphere of understated luxury that celebrates both individual living and shared community experiences.

The design philosophy for Pristine Hive centers on creating timeless residential spaces that prioritize functionality without compromising aesthetic appeal. Each unit incorporates smart storage solutions, optimized room layouts, and seamless indoor-outdoor connections through private balconies and terraces. The project showcases a sophisticated material palette that includes natural stone, warm wood finishes, and contemporary fixtures, creating interiors that feel both current and enduring. The architectural detailing emphasizes clean lines and proportional harmony, while the overall development promotes a sense of neighborhood within the urban fabric of Bangalore, proving that residential architecture can successfully bridge the gap between private sanctuary and community living.

Residential design should create homes that grow with their inhabitants. At Pristine Hive, we focused on designing spaces that are both intimate and expansive — places where families can retreat from the city while remaining connected to it. Good residential architecture anticipates how people want to live, not just how they live today.

Abhay Sreekant
Project Architect


About
Portfolios
Blog
Contact

Office Address

#77, 1st J Cross,
3rd Main Road
Sharadha Colony, Basaveshwarnagar
Bangalore - 560 079
abhay@thedesigndatum.com
(91) 99001 08099

Social

Instagram
LinkedIn
Houzz

© Copyright The Design Datum